0375 462 060 | 0395 553 350
Tùy chọn mẫu và kích thước riêng Rustic sẽ làm theo yêu cầu
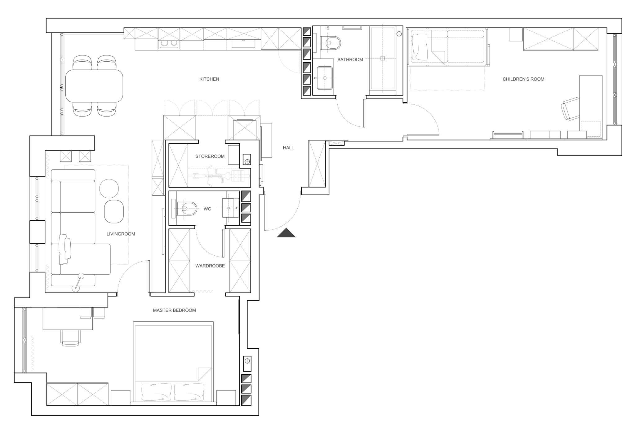
Mã sản phẩm: Concept 3D 156
Giá gốc 0₫
Số lượng
Copyrights © 2017 by Suplo. Powered by Haravan
Mã sản phẩm: 01923123